Проект №111
Проект №111
260,3 м2
- Площадь: 260,3
- Этажей: 3
Планы Листайте
Архитектурный проект
от 15 000 р
- Теплотехнический расчет
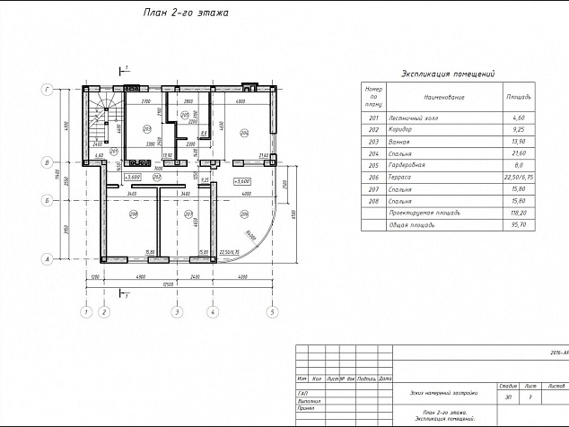
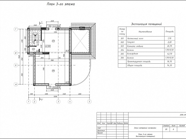
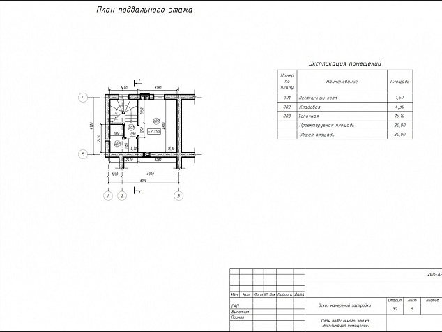
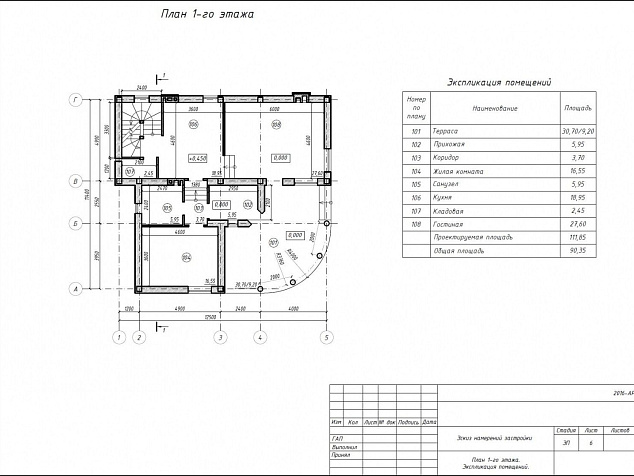
- Экспликации помещений
- Кладочные планы
- Схемы расположения перемычек
- Схема устройства полов
- Архитектурные узлы
- Кладка вентканалов
- Ведомость оконных и дверных проемов
- Планы лестниц
- Расчет облицовочных материалов
Строительный проект
от 450 р/кв.м.
- Все что включено в архитектурный
- Расчет фундамента по несущей способности и чертежи
- Армирование плиты пола
- Армирование и расчет монолитных поясов
- Армирование и расчет балок
- Схемы раскладки плит перекрытия
- Армирование лестниц
- Расчет стропильной системы
- Конструктивные узлы
- Все спецификации
- Полный расчет дома по прочности
- Расчет сметы
- Скидка на строительство
Строительство
от 18 000 р/кв.м
- Фундамент
- Плита пола
- Разводка коммуникаций
- стены
- Утепление
- Перекрытия
- Стропильная система
- Кровля
- Смета
Ремонт и отделка
от 5 000 р/кв.м
- Устройство теплых полов
- Плитки
- Оштукатуривание стен
- Фактурная штукатурка
- Обои
- Подвесной потолок
- Разводка электричества
- Воды
- Отопления
Дизайн проекта
от 1 500 р/кв.м.
- Планы помещений
- Планы полов
- План потолков
- Развертка стен
- Схема освещения
- Схема расстановки мебели
- Ведомость материалов
- Подбор материалов
- Подбор мебели
- Фотореалистичные визуализации
- Визуализация 360 для VR
Описание
Представленный проект может быть возведен из кирпича, кирпича с утеплителем , газоблока или теплой керамики по вашему желанию.
Перегородки – кирпич.
Перекрытие - плиты или монолит.
Вы можете выбрать любой строительный материал, стоимость проекта практически не изменится.
Перегородки – кирпич.
Перекрытие - плиты или монолит.
Вы можете выбрать любой строительный материал, стоимость проекта практически не изменится.
Крепление мауэрлата. Стропильная система, обрешетка.
Металлочерепица. Покрытие: полиэстер, с гарантией качества 15 лет, толщина стали 0,5 мм.
Данный вид покрытия быстро монтируется, конструкция достаточно легкая.
Возможные варианты: катэпал - мягкая кровля, керамическая, фальцевая и т.д.
Подшивка свесов и водосточная система.
Металлочерепица. Покрытие: полиэстер, с гарантией качества 15 лет, толщина стали 0,5 мм.
Данный вид покрытия быстро монтируется, конструкция достаточно легкая.
Возможные варианты: катэпал - мягкая кровля, керамическая, фальцевая и т.д.
Подшивка свесов и водосточная система.
Ленточный фундамент с уширениями для двухэтажного дома.
Фундамент разрабатывается под каждый проект в зависимости от его особенностей (к примеру подвал) и типа грунта.
Если вы захотите доработать проект и добавить подвал или на вашем участке сложный или насыпной грунт, то фундамент лучше сделать в виде плиты.
Особенность этого вида фундамента в том, что он быстро возводится и обладает невысокой стоимостью.
.
Фундамент разрабатывается под каждый проект в зависимости от его особенностей (к примеру подвал) и типа грунта.
Если вы захотите доработать проект и добавить подвал или на вашем участке сложный или насыпной грунт, то фундамент лучше сделать в виде плиты.
Особенность этого вида фундамента в том, что он быстро возводится и обладает невысокой стоимостью.
.
- штукатурка и окраска в нужный оттенок
или - керамический облицовочный кирпич выбранного оттенка и структуры.
Облицовочный кирпич более долговечен, эстетически более привлекателен, также обладает хорошей звуконепроницаемостью.
Цоколь и отдельные элементы фасада -могут быть отделаны природным камнем.
В готовых проектах частного 2-х или 3-х этажных домов мы предлагаем железобетонные лестницы, которые в последствии вы можете отделать деревом, керамикой, стеклом, кованными элементами и другими декоративными материалами на собственный вкус.
Подобные лестницы популярны, поскольку обладают высокой жесткостью конструкции, не скрипят, можно спроектировать и создать любую удобную или желаемую форму. Кроме этого железобетонные лестницы одни из самых долговечных.
При индивидуальном строительстве вид и тип лестницы обсуждается на этапе проектирования и может быть любого вида - от подвесной до железобетонной.
Подобные лестницы популярны, поскольку обладают высокой жесткостью конструкции, не скрипят, можно спроектировать и создать любую удобную или желаемую форму. Кроме этого железобетонные лестницы одни из самых долговечных.
При индивидуальном строительстве вид и тип лестницы обсуждается на этапе проектирования и может быть любого вида - от подвесной до железобетонной.
Заказать расчет стоимости
Почему нам доверяют Листайте
Услуги
Наша команда предоставляет как полный комплекс от проектирования дома до ландшафтного дизайна, так и каждую услугу отдельно.
Вы можете просто купить проект или заказать экспертизу уже купленного, обратиться к нашим дизайнерам интерьера для создания уюта в вашей квартире или частном доме. Ландшафтный дизайнер с радостью разработает проект благоустройства территории рядом с домом и проконтролирует его реализацию вплоть до заказа необходимых растений, высадки и ухода за ними. И многое другое.
Вы можете просто купить проект или заказать экспертизу уже купленного, обратиться к нашим дизайнерам интерьера для создания уюта в вашей квартире или частном доме. Ландшафтный дизайнер с радостью разработает проект благоустройства территории рядом с домом и проконтролирует его реализацию вплоть до заказа необходимых растений, высадки и ухода за ними. И многое другое.
Строим дома под ключ и реализуем готовые проекты. Если необходимо, возведем фундамент – опору будущего дома, выполним кровельные, ремонтные и плотницкие работы.

