Проект №101
Проект №101
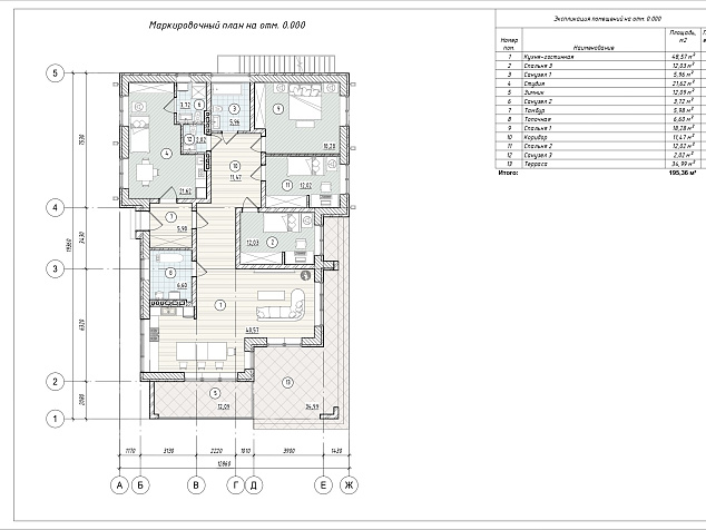
148,28 м2
- Площадь: 148,28
- Этажей: 1
- Жилая площадь: 111
- Площадь кухни: 49
- Количество спален: 4
Планы Листайте
Архитектурный проект
от 15 000 р
- Теплотехнический расчет
- Экспликации помещений
- Кладочные планы
- Схемы расположения перемычек
- Схема устройства полов
- Архитектурные узлы
- Кладка вентканалов
- Ведомость оконных и дверных проемов
- Планы лестниц
- Расчет облицовочных материалов
Строительный проект
от 450 р/кв.м.
- Все что включено в архитектурный
- Расчет фундамента по несущей способности и чертежи
- Армирование плиты пола
- Армирование и расчет монолитных поясов
- Армирование и расчет балок
- Схемы раскладки плит перекрытия
- Армирование лестниц
- Расчет стропильной системы
- Конструктивные узлы
- Все спецификации
- Полный расчет дома по прочности
- Расчет сметы
- Скидка на строительство
Строительство
от 18 000 р/кв.м
- Фундамент
- Плита пола
- Разводка коммуникаций
- стены
- Утепление
- Перекрытия
- Стропильная система
- Кровля
- Смета
Ремонт и отделка
от 5 000 р/кв.м
- Устройство теплых полов
- Плитки
- Оштукатуривание стен
- Фактурная штукатурка
- Обои
- Подвесной потолок
- Разводка электричества
- Воды
- Отопления
Дизайн проекта
от 1 500 р/кв.м.
- Планы помещений
- Планы полов
- План потолков
- Развертка стен
- Схема освещения
- Схема расстановки мебели
- Ведомость материалов
- Подбор материалов
- Подбор мебели
- Фотореалистичные визуализации
- Визуализация 360 для VR
Почему нам доверяют Листайте
Услуги
Наша команда предоставляет как полный комплекс от проектирования дома до ландшафтного дизайна, так и каждую услугу отдельно.
Вы можете просто купить проект или заказать экспертизу уже купленного, обратиться к нашим дизайнерам интерьера для создания уюта в вашей квартире или частном доме. Ландшафтный дизайнер с радостью разработает проект благоустройства территории рядом с домом и проконтролирует его реализацию вплоть до заказа необходимых растений, высадки и ухода за ними. И многое другое.
Вы можете просто купить проект или заказать экспертизу уже купленного, обратиться к нашим дизайнерам интерьера для создания уюта в вашей квартире или частном доме. Ландшафтный дизайнер с радостью разработает проект благоустройства территории рядом с домом и проконтролирует его реализацию вплоть до заказа необходимых растений, высадки и ухода за ними. И многое другое.
Строим дома под ключ и реализуем готовые проекты. Если необходимо, возведем фундамент – опору будущего дома, выполним кровельные, ремонтные и плотницкие работы.

